TECHNIK - Homepage_Kellertheater
Fb
Ig
X
×
Homepage
News / Aktuell
Programm
Ticketing
Newsletter
Mitglied werden?
TECHNIK
über uns
Sponsoren
Location
Archiv
×
Homepage
News / Aktuell
Programm
Ticketing
Newsletter
Mitglied werden?
TECHNIK
über uns
Sponsoren
Location
Archiv
Direkt zum Seiteninhalt
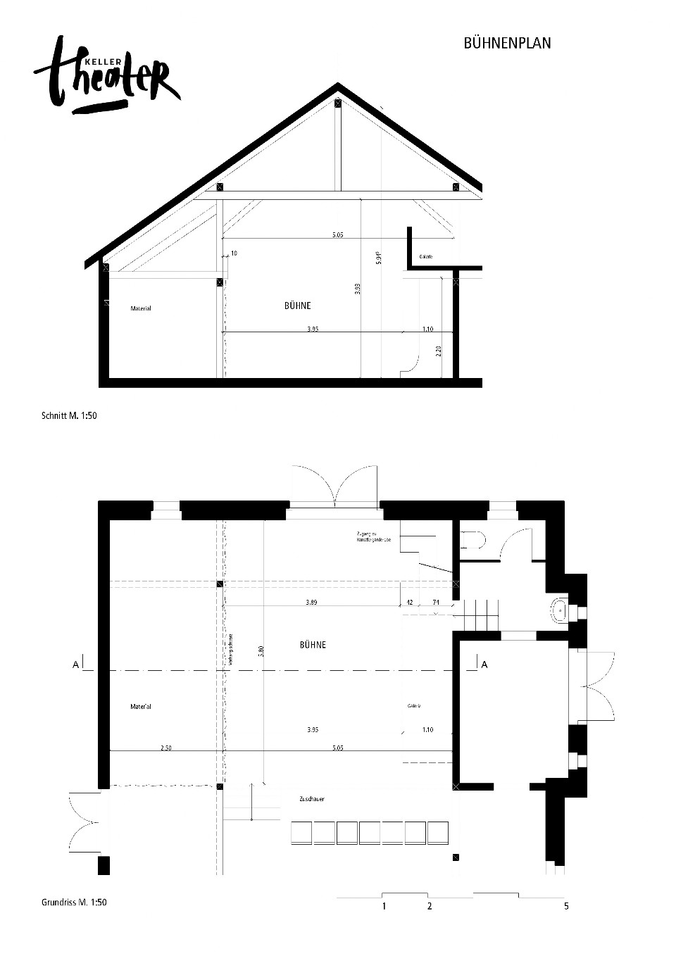
TECHNIK
Anordnung Fresnel LED 100/50W
Zurück zum Seiteninhalt
Um diese Website nutzen zu können, aktivieren Sie bitte JavaScript.